Coalesce - Warehouse Conversion

Brief

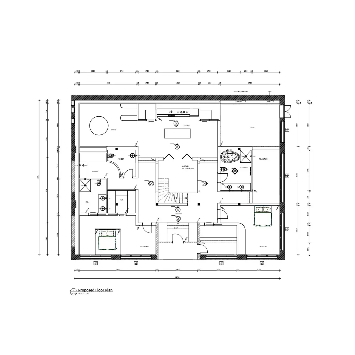
Convert a stripped warehouse into a suitable home for a couple that frequently has guests over. A minimum of 2 bedrooms and sufficient recreational and home office space. Utilise external consultants to design a second story to maximise space. Exisitng services cannot be moved from slab, consider this in planned gas/ plumbing locations.

Design Breakdown

Expansive ceilings were highlighted within this warehouse conversion project. The main circulation areas are based around the central mezzanine.

Clad in aged timber from floor to ceiling these panels pull focus to the skyights above. These tall ceilings allow light to fill the space whilst feeling open. Contrasted by a lower ceiling plane in the living and sleeping zones.

This design impliments simple materiality and angular forms to create an environment that feels open whilst being isolated from the external busy city streets.

Specifications

Area of site

295 m2

Date

2025

Tools used

Revit, Enscape

Proposed RCP & Floor plan

Kyle Wessels

(+61) 490 777 141 | kylewess21@gmail.com

© Kyle Wessels, 2026